第十二章  列王纪上下:从繁荣至被掳

 

列王纪上下是以色列人的失败史:“从富裕转趋贫困,从强大渐形瘫痪。”[1]列王纪上前几章述说所罗门在位时的繁荣景象。到了书的中间部分,北部十个支派与南部两个支派对峙,王国分裂。其后两国(以色列与犹大)钩心斗角,祸乱频生。一直到列王纪下,两国相继覆亡被掳。图表12.1说明以色列日走下坡的情形。

 

 

列王纪从人类政权的败落引出神将来要建立的国度。那时,大卫之子要做王统治万国。

 

第一节  列王纪上

 

一、读前准备

 

重温图表l1.1的以色列史分期。

 

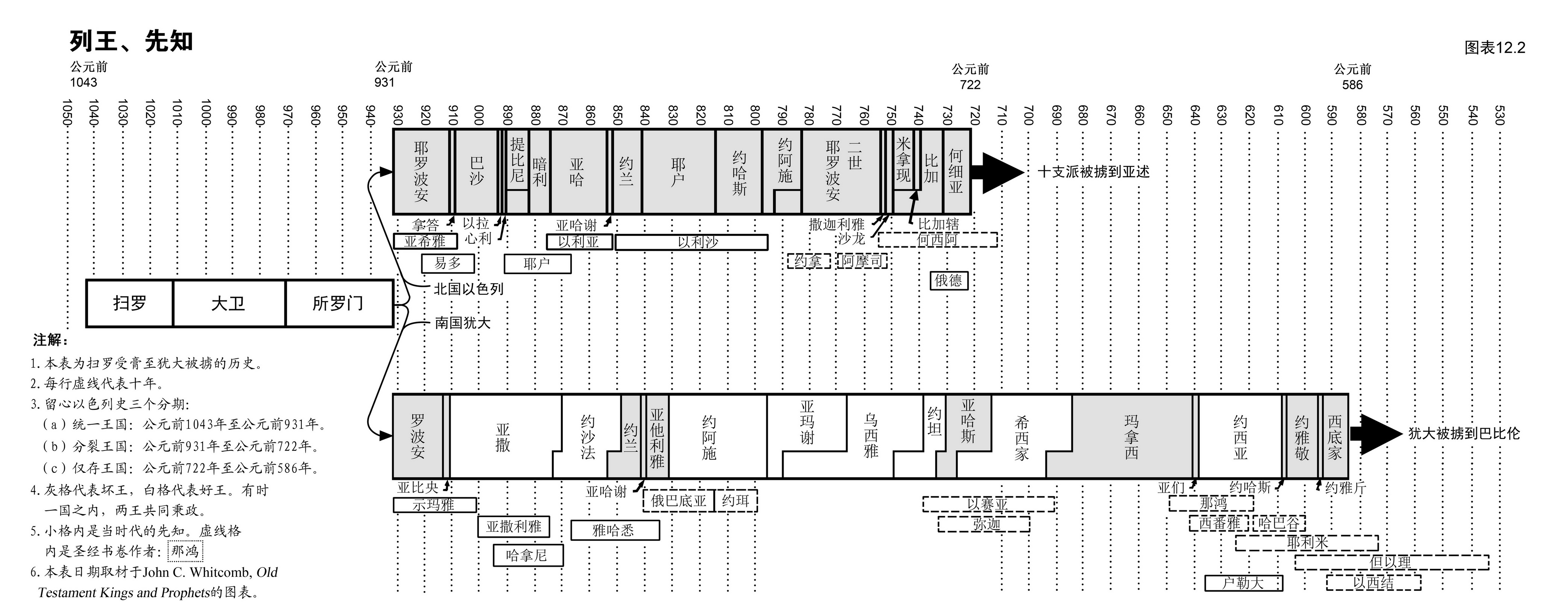
请细读图表12.2及其说明,留意以色列史的三个分期:统一王国分裂王国仅存王国。请说明“统一、分裂、仅存”这三个名称的意思,每个分期从是何时开始的?

 

请留意先知在这期间的重要地位。王国分裂初期,有以利亚和以利沙两位先知,他们没有写先知书,其后又有几位著名的先知,如以赛亚、耶利米等。列王纪和历代志的背景都促使先知传讲从神而来的信息,而先知书也表明了列王纪和历代志时代的景况。

 

 

 

请先熟读列王纪的地理形势。列王纪上的地理,见于地图12.1;列王纪下的则见于地图12.2

 

 

 

 

附录(图表附录12)为以色列和犹大王表略,大家读列王纪时可以此作参考。

 

二、背景

 

1. 名称和正典中的位置

 

列王纪记载列王生平要事,从所罗门开始直至最后的西底家王,因此名为“列王纪”是十分恰当的。

 

图表12.3为列王纪和历代志在早期希伯来文圣经、七十士译本,及现代英文圣经的位置。在早期的希伯来文圣经中,列王纪上下合为一卷,七十士译本始分为二,原因是希腊译本比原著长三分之一,分卷较易处理。公元1517年,丹尼尔·布隆贝格(Daniel Blomberg)首次照七十士译本划分希伯来文圣经,是为近代版本。

 

列王纪和历代志在旧约中的位置                                                        图表12.3

早期希伯来文本

七十士译本

英文译本

列王纪

 

一卷

 

列入前先知书

王国之三[2]

 

王国之四

列王纪上

 

列王纪下

 

列入历史书

历代志

 

一卷

 

列入前先知书

历代志上

 

历代志下

历代志上

 

历代志下

 

 

列王纪和及历代志所记,以王国时代两国的王所发生的事为背景,请参图表12.4

 

 

列王纪上的历史紧接撒母耳记下;以斯拉记所记载的则为历代志下的续集;而列王纪上下与历代志下同期,这两卷书分别从不同的角度描写当时发生的事情,其中差异之处,我们到下章“历代志上下:君王统治下的犹大”再谈。

 

2. 写作日期与作者

 

列王纪上下的文章风格统一,显然出自一人手笔。列王纪所载的最后一件事(释放约雅斤),约发生在公元前562年,书中没有提及从巴比伦回国之事(公元前536年),故推测本书写于公元前562至公元前536年之间。相传耶利米为本书的作者,但是大部分权威的圣经学者则认为本书是不具名的作者所写,并相信作者是被掳巴比伦的犹太人。

 

3. 处境

 

就如读士师记一样,我们若牢记书中人物的名字,读的时候就方便得多。附录中的图表已经将犹大和以色列的王顺序列出,犹大共有十九任王(另加王后一位),以色列也有十九任王,有些王的名字相同。表中同时注明了各王或善或恶,作者写书时也特别说明了这一点。读列王纪(和历代志)的时候,可以参照这表。

 

我们再看图表12.5,请留意下列各项。

 

注意这期间的重要历史事件.

 

a)公元前1043年——第一任王

 

b)公元前931年——王国分裂

 

c)公元前722年——北国亡(撒玛利亚陷)

 

d)公元前586年——南国亡(耶路撒冷陷)

 

留心列王纪上从何时开始。列王纪下以耶路撒冷失陷结束,但是也补载了一段简短的后记(25:27-30)。

 

列王纪上下之间过渡得相当平淡,更可以看出两卷书原本是一气呵成之作。

 

以利亚和以利沙是列王纪的重要人物。图表12.2说明以利亚和以利沙之后的先知,他们大多为圣经作者。为什么先知的事工对王国如此重要?列王纪涉及王国历史哪三个时期?

 

 

三、列王纪上的综览

 

略读列王纪上一遍,将章题写下来。

 

读列王纪上2237-53节,再读列王纪下11-4节。试留意两卷书如何一气呵成,中间没有任何空隙。

 

照一贯的步骤综览,并回答下列各题目。

 

a)这卷书什么地方处给你的印象最深刻?

 

b)有哪些重点?

 

c)书中有哪些行动、叙述和对话?

 

d)书中有哪几位主要人物?书最后几章主要的先知是谁?请参经文汇编,看他第一次出现是在哪一章。

 

e)本书最重要的转捩点是哪一段?

 

请细看图表12.6,并留意下列各点。

 

a)本卷书共计二十二章;而涉及统一王国和分裂王国的经文各占多少?

 

b)留意下列事件记载在书中什么地方:大卫崩,建圣殿,所罗门崩,北部十支派与犹大分裂,以利亚的蒙召与事工。

 

c)列王纪上的钥章是哪几章?

 

d)留意图表12.6给列王纪上所定的标题:“自相分裂的王国”。

 

e)列王纪上的历史,约共一百三十年(公元前971至公元前841年),前十一章记载所罗门当政时代,历时四十年。我们将犹大另外四王执政的年数加起,便知道全书大约经历的年数。

 

 

四、列王纪上重点主题

 

列王纪上有下列应注意的事项:所罗门王、王国分裂、先知以利亚。图表12.7为本书简单纲要,转捩点是第12章。

 

 

 

1. 所罗门

 

请参第14章,列出所罗门前半生事迹纲要。

 

2. 所罗门的殿

 

请参下列大纲,读51节至99节。

 

a)筹建圣殿(5:1-18);

 

b)建造及装饰圣殿(6:1-7:51);

 

c)献殿(8:1-9:9)。

 

3. 所罗门后期事迹

 

我们看到截然相反的情景:

 

a)王国昌盛(9:10-10:29);

 

b)君王背道(11:1-43)。

 

所罗门王的名声、智慧、财富和尊荣超过以前所有君王,可惜这一切却冲昏了他的头脑,使他忘记那赐他好处的耶和华,致使他晚年生活腐败。卡尔·德·弗里斯(Carl De Vries)评述他的失败说:“大卫犯下重罪,但最终诚心悔过。所罗门则渐渐偏离正道,收场更为可悲。”[3]

 

4. 王国分裂

 

列王纪上12章在旧约圣经中占有很重要的地位,因为其中所发生的事对旧约中日后的犹太人来说,影响极其深远。请细读这章经文。

 

王国尚未分裂的时候,北部的支派(以色列人)和南部的支派(犹大地人)就时有纠纷。(参撒下19:40-43)所罗门王苛征重税,失去民心。他去世以后,北部十个支派起而反抗,不肯臣服于所罗门之子罗波安的领导,另立一国,就是“以色列国”;而仍效忠于罗波安的两个支派则称为“犹大国”(参地图12.1),这是王国分裂的开始。请问北部的王是谁呢?

 

在列王纪上的前十一章,王国尚未分裂,情节简单清晰。但从第12章起,一直到列王纪下第17章,圣经同时分述南北两国(犹大和以色列国),令人有点眼花缭乱;而到了列王纪下18章,只有犹大王国未亡,情节又显得清晰明快。以下为列王纪上1222章有关王国兴替的大纲。书中南北两国交替出现。[4]

 

犹大王国(12:1-19
 

a)罗波安登基施苛政(12:1-15;参代下10:1-11)。

 

b)十支派叛(12:16-19;参代下10:12-1911:1-4)。

 

以色列王国(12:20-14:20
 

a)耶罗波安登位及其恶行(12:20-23)。

 

b)神插手干预(13:1-32)。

 

c)耶罗波安执迷,神的话临到(13:33-14:18)。

 

d)耶罗波安崩(14:19-20)。

 

犹大王国(14:21-15:24
 

a)犹大人行恶拜偶像(14:21-24;参代下12:1)。

 

b)神的管教与怜悯(14:25-30;参代下12:2-12)。

 

c)罗波安崩(14:31;参代下12:13-16)。

 

d)亚比雅(15:1-8;参代下13:1-2)。

 

e)亚撒(15:9-24;代下14:116:1-612-14)。

 

以色列王国(15:25-22:40
 

a)拿答(15:25-26)。

 

b)巴沙(15:27-34)。

 

c)神的话临到(16:1-7)。

 

d)以拉(16:8-10)。

 

e)心利(16:10-20)。

 

f)暗利(16:21-28)。

 

g)亚哈(16:29-22:40)。

 

犹大国(22:41-50
 

a)约沙法(22:41-50;代下17:1-21:1)。

 

以色列国(22:51-53
 

a)亚哈谢(22:51-53)。

 

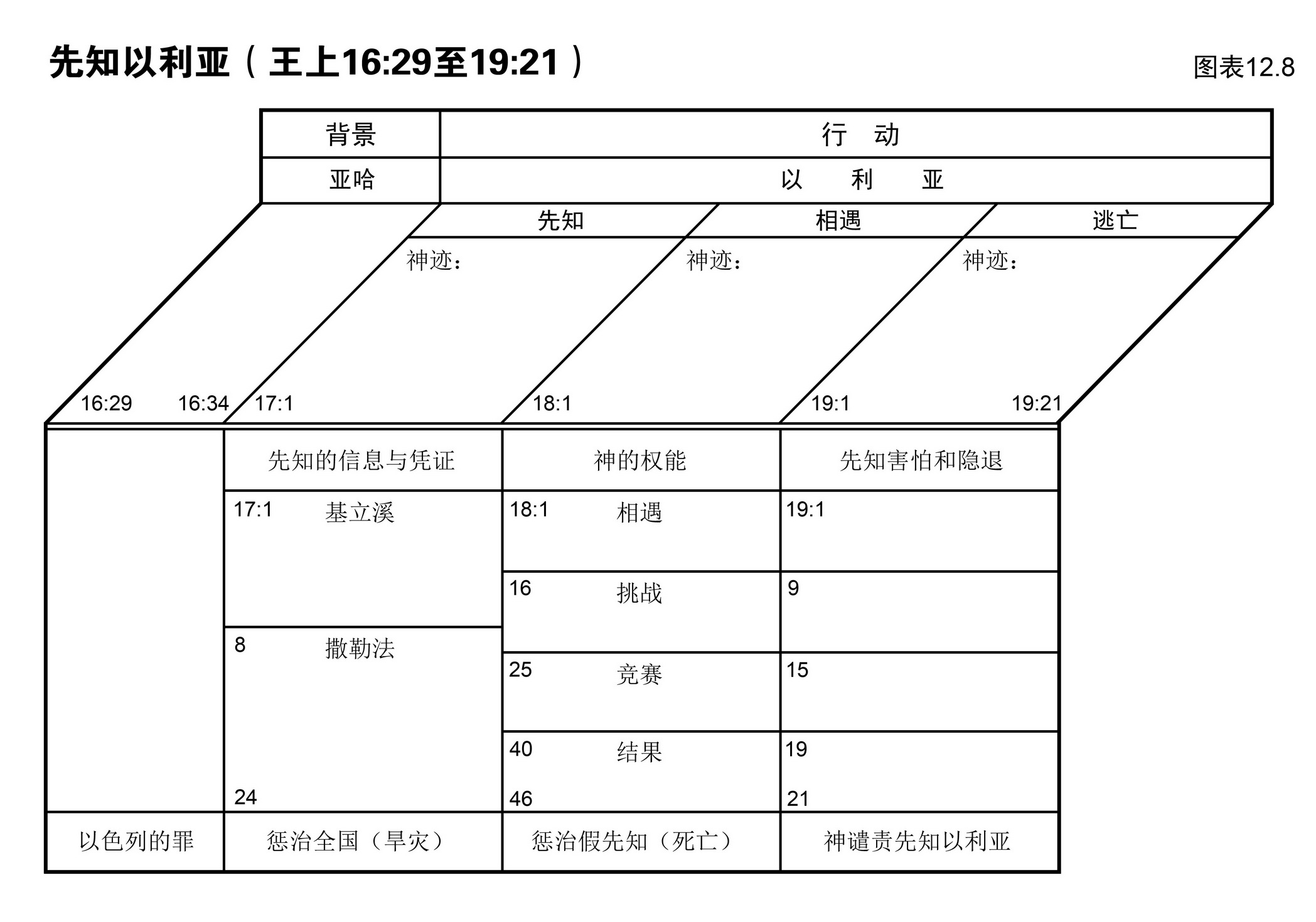
5. 以利亚

 

以利亚是1629节至1921节的主角。请读者参照图表12.8硏读以利亚的生平,并给出结论。

 

 

五、列王纪上钥字钥节

 

94-5节是本卷书的钥节,请再找出另一句钥节。钥句是“大卫他祖”(和“大卫我祖”)。翻查经文汇编就可知它出现过多少次。

 

六、列王纪上应用

 

请从书中找出下列属灵教训的应用:

 

a)祷告、警告、劝勉

 

b)神的公义、惩罚

 

c)神的怜悯

 

d)神的家——教会

 

e)敬拜赞美

 

f)神的声音

 

g)成功的领导

 

h)背道原因

 

i)神在国家及个人身上的作为(参但4:253435

 

信徒对现今的政府应当采取什么态度?

 

何谓真正的敬拜?

 

七、列王纪上进阶习作

 

硏究所罗门的个性、生平,以及他所兴建的圣殿。比较圣殿与会幕。

 

第二节  列王纪下

 

一、列王纪下综览

 

查看图表12.9,注意列王纪下历史故事的进展。

 

 

尽可能一口气读完整卷书一遍,不必拘泥于小节内容。

 

将分段题目写下来。(注意:照图表12.10的提示,有几章合成一段的,或一章分作多段的。)

 

 

综读以后,你对本卷书的印象如何?

 

你能找到书中的钥字钥节吗?如果不能,读下去时请加倍留意,钥字钥节往往说明书的主题。

 

你找到书中的转捩点吗?看到其中的高潮吗?请比较书的开始和结尾。

 

请细看图表12.10,前面已经提过列王纪上下是一气呵成、前呼后应的,读时请不要忘记这一点。

 

本卷书可分两大段。117章为“分裂王国”;1825章为“仅存王国”,表中用深线划开。(117章交替叙述两国的事,大家可自行翻阅。从18章开始,单叙述犹大国末年所发生的事。)

 

照图表12.10所示,列王纪下涉及的历史过程共计二百六十五年。第一大段(1-17章)共一百三十年;第二大段(18-25章)共一百三十五年。

 

哪一章经文记载神惩罚犹大和以色列?怎样惩罚?请细读那两段经文。

 

哪一章记载以利沙的事迹?注意:以利亚后来的事工也是这卷书第一章的主题。

 

列王纪用许多篇幅记载以利亚和以利沙的事迹,可见这两个人对当代犹太人影响极大。列王纪下的时代,又称为伟大的先知时期。请参“列王、先知”(图表12.2),并举出于公元前850至公元前586年间侍奉的先知。

 

注意列王纪下如何编排两国(以色列及犹大)君王的次序,请参综览部分所列之表。

 

这卷书的标题为“被掳王国”。试将上下两书的标题做一比较。

 

2527-30节为跋。跋中记载耶路撒冷失陷(公元前586年)以后的事。请参图表12.5

 

列王纪上下为一个完整的记述,试比较它的起点和终局(不必比较跋),留意上下两卷书相对的地方。

 

a)列王纪上以国之昌盛开始;列王纪下以国之瓦解结束。

 

b)列王纪上在开始时显示顺服者有光明的盼望;列王纪下在结束时指出叛逆者要经受惨痛惩治。

 

c)列王纪上开始时,圣殿华美辉煌;列王纪下结束时,圣殿烟火迷漫,沦为废墟。

 

二、列王纪下重点主题

 

1. 以利沙

 

就如以利亚是列王纪上的主角,以利沙是列王纪下的重要人物。二人都是代表神向北国以色列说话的先知;但有趣的是两个人所代表的各有不同。以利亚在大庭广众下施行神迹;以利沙行神迹的次数虽然很多,但注重满足个别的需要。以利亚彰显神的律法、审判和严厉的惩罚;以利沙则表明神的恩典、慈爱和温柔。以利亚有如施洗约翰,大声疾呼地劝人悔改;以利沙则如主耶稣,广行善事神迹,以证明他们的话出于神。

 

在以利沙的时代,以色列国灵性非常低落。由于耶罗波安迫害祭司和利未人,他们和许多敬拜神的人都逃到犹大(参代下11:13-16),因此自从耶罗波安当政开始,北国十个支派就没有祭司和利未人,当然他们也没有上耶路撒冷的圣殿敬拜神。

 

不过,幸好以色列国尚有先知学校,保存一股公义的势力。先知把所学的教授门徒,例如神的律法等。先知是神的代言人,负责将神的真理预告众人,而不是单单预言将来而己。北国先知所承担的任务跟南国祭司所肩负的大致相同。以利沙是这群先知公认的领袖,常往来各学校探望门徒,许多神迹都是在探望门徒时施行的,一次他还特地以神迹帮助了一个先知门徒(参6:1-7)。

 

请从11节至815节中,找出并列举以利沙所行的神迹。

 

2. 撒玛利亚失陷(17:1-41

 

何细亚是以色列最后一位君王,他在位末年,都城撒玛利亚失陷,十个支派被掳到亚述去。参地图12.3。亡国的原因,表面上是何细亚不照往年给亚述进贡,还密谋造反,但内里的原因却是以色列人恒久弃绝神,神在177-23节中斥责他们是背道的民。

 

 

3. 希西家(18:1-20:21

 

以色列亡国被掳后,犹大仍然存留,继续见证神。那时,希西家登位,亚哈斯摄政。[5]亚哈斯是一个败坏的王,没有理会神的教训;但他的儿子希西家却敬畏神,神就用他清除亚哈斯在国中留下的罪恶,领导国人重新敬拜神。181节至2021节是希西家的事工与试炼。

 

4. 耶路撒冷失陷(25:1-26

 

耶路撒冷于公元前586年失陷,这是列王纪下最后的悲剧。神苦心劝勉、等待他们离开罪恶,归向他;他们却不听从,由君王、祭司至人民,一起继续败坏下去。故此,巴比伦的人便来拆毁京城圣殿,把百姓掳去。请细读这一章重要的经文。

 

以下三种因素都可以叫犹大免蹈以色列的覆辙:

 

1)以色列的鉴戒
 

以色列被掳,其实是神对罪的惩罚。他们叩拜别神,也不求神救他们脱离亚述。犹大也有同样的罪吗?他们处于同一局势,受外敌强国所困,图表12.9已列举了当时包围犹大的外敌君王之名字。(参照图表1.6

 

2)犹大王的改革
 

仅存王国有两位好君王:希西家、约西亚。他们都推行宗教改革,可惜只能在他们当政时生效(图表12.212.9)。参181-8节,221节至2330节。

 

3)先知警诫
 

先知的名字已经列在图表12.9中。以赛亚和耶利米是当时代最重要的先知,他们的信息都是斥责罪恶,宣判神的惩罚。犹大和以色列都不能否认先知已经屡次警诫他们,叫他们离恶悔改了。

 

可惜“他们却嬉笑神的使者,藐视他的言语,讥诮他的先知,以致耶和华的忿怒向他的百姓发作,无法可救。”(代下36:16

 

图表12.11为以色列人由君王统治起所经历的四件大事。请说明是哪四件事情(参图表12.2):

 

 

三、列王纪下钥字钥节

 

1718-19节和2327节是本卷书的钥节。钥句是“神人”、“耶和华的话”、“耶和华眼前”、“仍旧”和“只是”。请参看图表12.10

 

四、列王纪下应用

 

列王纪下从头至尾都说到罪和惩罚,请用这个题目列出你从本卷书得到的教训。从习作的结论中,你可认识神和人的性情。

 

五、列王纪下进阶习作

 

硏究以利沙的生平。

 

犹大被掳巴比伦时,耶利米是最重要的先知。请读耶利米书和耶利米哀歌。试硏究这位先知的生平与事工。

 

六、选读书目

 

1. 中文书籍

 

王国显:《神眼中看为正的事——列王纪上下读经箚记》(晨星出版社)

 

贾玉铭:《圣经要义》(晨星出版社)

 

Albright, W. F., et al:《圣经考释大全:旧约论丛》(基督教文艺出版社)

 

Baxter, J. S. :《圣经硏究》(种籽出版社)

 

Coleman, R. O., et al:《威克里夫圣经注释》(种籽出版社)

 

Davidson, F., et al:《证主21世纪圣经新释》(证道出版社)

 

2. 英文书籍

 

Archer, Gleason L. A Survey of Old Testament Introduction, pp. 275-82.(中文译本为《旧约概论》,种籽出版社。)

 

Baxter, J. Sidlow. “Judges to Esther” in Explore the Book, vol. 2.(中文译本为《圣经硏究》,种籽出版社。)

 

Bruce, F. F. Israel and the Nations, pp. 13-104.(中文译本为《以色列与列国史》,种籽出版社。)

 

Crockett, William Day. A Harmony of the Books of Samuel, Kings and Chronicles.

 

Ellison, H. L. “Ⅰ and II Kings” in The New Bible Commentary, pp. 300-301.(中文译本为《证主21世纪圣经新释》,证道出版社。)

 

Finnegan, J. Light from the Ancient Past, pp. 129-91.

 

Free, J. P. Archaeology and Bible History, pp. 146-225.

 

Gates, John T., and Stigers, Harold. “1 and 2 Kings” in The Wycliffe Bible Commentary, pp. 307-9.(中文译本为《威克里夫圣经注释》,种籽出版社。)

 

Krummacher, F. W. Elijah the Tishbite.

 

Morgan, G. Campbell. Living Messages of the Books of the Bible, pp. 176-206.

 

Pfeiffer, Charles F. The Divided Kingdom.

 

Pink, Arthur W. Gleanings from Elisha.

 

Schultz, Samuel J. The Old Testament Speaks, pp. 141-228.

 

Unger, Merrill F. Archaeology and the Old Testament, pp. 188-288.

 

——. Introductory Guide to the Old Testament, pp. 298-304.

 

Whitcomb, John C. Solomon to the Exile.

 

Wood, Leon. A Survey of Israel’s History, pp. 287-376.(中文译本为《以色列史综览》,中华福音神学院。)

 

——. Elijah, Prophet of God.

 

[1] G. Campbell Morgan, Living Messages of the Books of the Bible, p. 177.

[2] 在七十士译本中,撒母耳记上下称为王国上下。

[3] Carl E. De Vries, “Solomon,” The Zondervan Pictorial Bible Dictionary, p. 802.

[4] 历代志上下涉及的范围也包括在大纲之内,可作以后参考。

[5] 某些圣经学者认为希西家在以色列亡国后登基为王,这点意见可参考其他资料,而图表12.2代表哪种见解呢?

最后修改于
上一篇